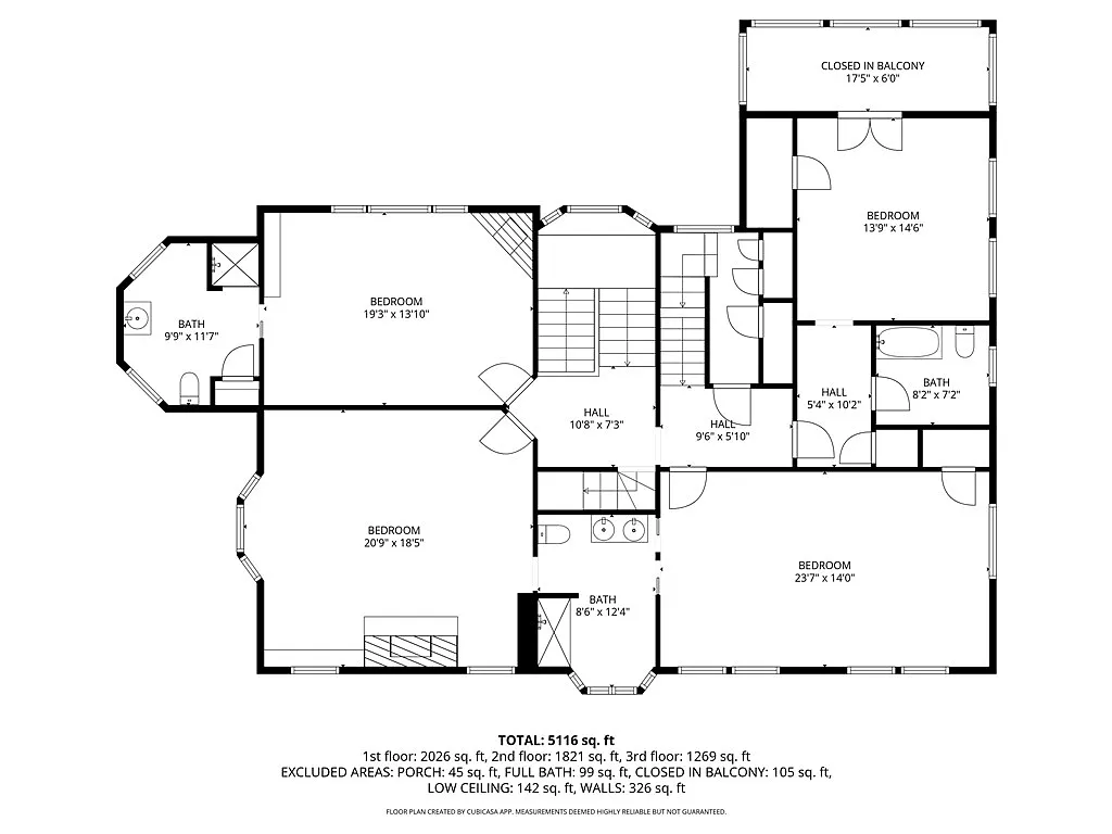
Nestled on a generous 0.61-acre lot in the Westmont-Hilltop School District, this grandiose 1910 stone home on 150 Bucknell Avenue in Johnstown, Pennsylvania offers 5,100 square feet of space and an opportunity rarely seen at this price point. With six bedrooms, five full bathrooms, and an additional two-bedroom, one-bath apartment above the detached two-car garage, this property is designed for those who see potential where others see work. Inside, the home is filled with historic character featuring beautiful hardwood floors, multiple wood-burning fireplaces, and expansive rooms spread across three stories. The layout provides flexibility for large households, multi-generational living, or future income-producing possibilities. The detached garage apartment adds even more versatility, ideal for guests, extended family, or rental use once restored. This property is being sold as-is and is a cash-only sale, reflecting the work required to bring it back to its former glory. The gas hot water heating system exists, though its condition is unknown, and the home is sewer compliant, offering peace of mind on a major utility front. For investors, restoration enthusiasts, or buyers with vision, this home represents a rare chance to revive a stately residence with undeniable presence, solid stone construction, and space that’s nearly impossible to replicate today. With the right touch, this Johnstown classic could once again become a showpiece property offering both grandeur and long-term value. Don’t miss the opportunity to make it yours for an incredible price – schedule your private showing today!
Price $199,000.
If you need more info, contact the listing agent from the Zillow link below the photos.
Listed on Zillow




































